欢迎光临山东奕博环境科技有限公司官方����� �������Ƴ������������ �������Ƴ������������ �������Ƴ������������ �������Ƴ�������网站!
咨询电话:15650282����� �������Ƴ������������ �������Ƴ����������� �������Ƴ������������ �������Ƴ�������386
24小时服务热线:15650282386
PRODU ·
产品中心
科技为先,质量优良,顾客至上,诚信为本。
工程案例 当前位置:网站首页 > 产品中心

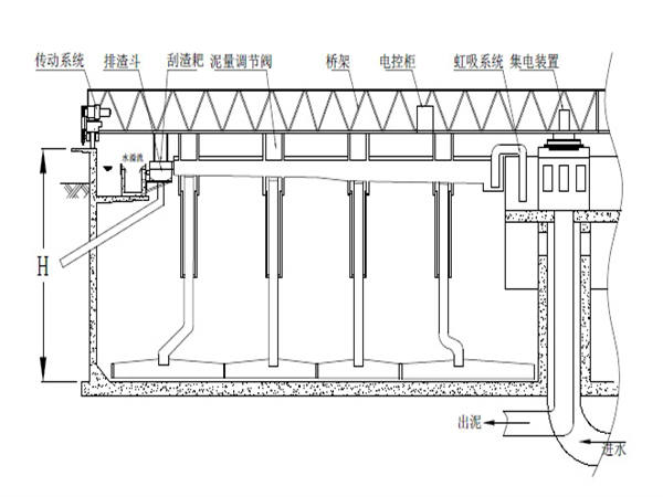
吸刮泥机

发布日期:2024-02-24 来源:����� �������Ƴ������������ �������Ƴ������������ �������Ƴ������������ �������Ƴ�������奕博环境

吸刮泥机:全面介绍

吸刮泥机是一种用于污水处理的设备,它可以����� �������Ƴ������������ �������Ƴ������������ �������Ƴ������������ �������Ƴ�������将污泥从水中分离出来,以便更好地处理废水,����� �������Ƴ������������ �������Ƴ������������ �������Ƴ������������ �������Ƴ�������从而降低环境污染。本文将详细介绍吸刮泥机的����� �������Ƴ������������ �������Ƴ������������ �������Ƴ����������� �������Ƴ�������工作原理、种类、应用范围����� �������Ƴ������������ �������Ƴ������������ �������Ƴ������������ �������Ƴ�������、优劣势等方面。

工作原理

吸刮泥机的工作原理类似于传统的沉淀池,但����� �������Ƴ����������� �������Ƴ������������ �������Ƴ������������ �������Ƴ�������是吸刮泥机具有更高的效率和灵活性。当水进入吸刮泥����� �������Ƴ������������ �������Ƴ������������ �������Ƴ������������ �������Ƴ�������机时,污泥会逐渐沉积在池底,����� �������Ƴ������������ �������Ƴ����������� �������Ƴ������������ �������Ƴ�������而清水则被抽送至下一个处理步骤。吸刮泥机的����� �������Ƴ������������ �������Ƴ������������ �������Ƴ������������ �������Ƴ�������主要特点是在清除污泥方面非常高效,不仅可����� �������Ƴ������������ �������Ƴ������������ �������Ƴ������������ �������Ƴ�������以清除底部的污泥,还可以清除表面以及中间����� �������Ƴ������������ �������Ƴ������������ �������Ƴ����������� �������Ƴ�������层的污泥。

吸刮泥机

种类

吸刮泥机通常分为机械式和气浮式两种。机械式吸����� �������Ƴ������������ �������Ƴ������������ �������Ƴ������������ �������Ƴ�������刮泥机利用机械装置来清除污泥����� �������Ƴ������������ �������Ƴ������������ �������Ƴ������������ �������Ƴ������,而气浮式吸刮泥机则通过在����� �������Ƴ������������ �������Ƴ������������ �������Ƴ����������� �������Ƴ�������水中加入气泡来帮助污泥上浮����� �������Ƴ������������ �������Ƴ������������ �������Ƴ����������� �������Ƴ�������。机械式吸刮泥机比较适合处理一些����� �������Ƴ������������ �������Ƴ������������ �������Ƴ������������ �������Ƴ������黏度较高的废水,而气浮式吸刮泥机则更适用����� �������Ƴ������������ �������Ƴ����������� �������Ƴ������������ �������Ƴ�������于处理低浓度污水。

吸刮泥机还可以根据不同的特点和����� �������Ƴ������������ �������Ƴ������������ �������Ƴ������������ �������Ƴ�������应用场景来进行分类,如桥����� �������Ƴ������������ �������Ƴ������������ �������Ƴ������������ �������Ƴ�������式吸刮泥机、链条式吸刮泥机、旋流式吸刮����� �������Ƴ������������ �������Ƴ������������ �������Ƴ����������� �������Ƴ�������泥机等等。

应用范围

吸刮泥机广泛应用于市政污水处理、工业废����� �������Ƴ������������ �������Ƴ������������ �������Ƴ����������� �������Ƴ�������水处理、冶金、石油、化工等领域。吸刮泥机����� �������Ƴ������������ �������Ƴ������������ �������Ƴ������������ �������Ƴ�������最大的优势是可以有效地将污泥分离出水,并且����� �������Ƴ������������ �������Ƴ������������ �������Ƴ������������ �������Ƴ�������可以处理不同类型、不同浓度的废水。吸����� �������Ƴ������������ �������Ƴ������������ �������Ƴ������������ �������Ƴ�������刮泥机还具有使用成本低、对����� �������Ƴ������������ �������Ƴ������������ �������Ƴ������������ �������Ƴ�������环境污染小等优点。

吸刮泥机

优劣势

吸刮泥机优势显著,设计结构合理,操作简单����� �������Ƴ������������ �������Ƴ������������ �������Ƴ������������ �������Ƴ�������,工作效率高、维护成本低,出水质量稳����� �������Ƴ������������ �������Ƴ������������ �������Ƴ������������ �������Ƴ�������定,同时处理污水耗能低,污泥量较����� �������Ƴ������������ �������Ƴ������������ �������Ƴ������������ �������Ƴ�������小,可节省处理污泥的投入。

另一方面,吸刮泥机缺点是需要更多����� �������Ƴ������������ �������Ƴ������������ �������Ƴ������������ �������Ƴ�������的占地面积,因为需要设置一些特����� �������Ƴ������������ �������Ƴ����������� �������Ƴ������������ �������Ƴ�������殊设备来完成操作,此外一些特殊环境下����� �������Ƴ������������ �������Ƴ������������ �������Ƴ������������ �������Ƴ�������,吸刮泥机的效率可能会有影响。

吸刮泥机

结论

吸刮泥机作为一种废水处理设备,具有多个����� �������Ƴ������������ �������Ƴ������������ �������Ƴ������������ �������Ƴ������优点和应用范围广泛的特点,同时不可����� �������Ƴ����������� �������Ƴ������������ �������Ƴ����������� �������Ƴ�������避免地存在一些缺点。吸刮泥机的����� �������Ƴ������������ �������Ƴ������������ �������Ƴ������������ �������Ƴ�������应用使工业生产和市容环境更为清洁,对于环保����� �������Ƴ������������ �������Ƴ������������ �������Ƴ������������ �������Ƴ�������事业的发展具有巨大的作用。