服务热线
15650282386
什么是一体化预制泵站?
一体化预制泵站是一种集潜水泵、泵站����� �������Ƴ������������ �������Ƴ������������ �������Ƴ������������ �������Ƴ�������设备、除污格栅设备、控制系统及远程系统集成的����� �������Ƴ������������ �������Ƴ������������ �������Ƴ������������ �������Ƴ�������一体化的产品。一体化预制泵站为����� �������Ƴ������������ �������Ƴ������������ �������Ƴ������������ �������Ƴ�������交钥匙工程,该泵站的筒体采用先进的����� �������Ƴ������������ �������Ƴ������������ �������Ƴ������������ �������Ƴ�������加厚型中等密度的玻璃钢材质铸造而����� �������Ƴ����������� �������Ƴ������������ �������Ƴ������������ �������Ƴ�������成。泵站主体由GRP井筒、水泵、管道、阀门、传����� �������Ƴ������������ �������Ƴ������������ �������Ƴ������������ �������Ƴ�������感器、控制系统和通风系统等部件组成。一体化����� �������Ƴ������������ �������Ƴ������������ �������Ƴ������������ �������Ƴ�������预制泵站是一种占地面积小,施工速度快,作����� �������Ƴ������������ �������Ƴ������������ �������Ƴ������������ �������Ƴ�������维修简便、对周边环境影响����� �������Ƴ������������ �������Ƴ����������� �������Ƴ������������ �������Ƴ�������小,成本低,使用方便,质量可靠的新型一体化预制泵����� �������Ƴ������������ �������Ƴ������������ �������Ƴ������������ �������Ƴ������站设备,容积优化是其显著的特征。广泛应����� �������Ƴ������������ �������Ƴ������������ �������Ƴ������������ �������Ƴ�������用于市政工程、工业或其它一些不能依����� �������Ƴ������������ �������Ƴ������������ �������Ƴ������������ �������Ƴ�������靠重力作用直接把废水排放到污水处理系����� �������Ƴ������������ �������Ƴ������������ �������Ƴ������������ �������Ƴ�������统的建筑。

一、设备概述
一体化预制泵站是一种使用方便,质量可靠,土建工����� �������Ƴ����������� �������Ƴ������������ �������Ƴ������������ �������Ƴ������作少,成本较低的新型一体化预����� �������Ƴ������������ �������Ƴ����������� �������Ƴ������������ �������Ƴ�������制泵站设备,容积优化是其显著的特征����� �������Ƴ������������ �������Ƴ������������ �������Ƴ������������ �������Ƴ�������。一体化预制泵站主要使用����� �������Ƴ������������ �������Ƴ������������ �������Ƴ������������ �������Ƴ�������在市政工业地下室排水,地铁排水,生活区����� �������Ƴ������������ �������Ƴ������������ �������Ƴ������������ �������Ƴ������,工厂等低于地面的一种污水处理装置,以为这些场����� �������Ƴ������������ �������Ƴ������������ �������Ƴ����������� �������Ƴ�������所的污水长期滞留在一个地方,很容易引起环����� �������Ƴ������������ �������Ƴ������������ �������Ƴ������������ �������Ƴ�������境的污染,严重的影响人们的����� �������Ƴ������������ �������Ƴ������������ �������Ƴ������������ �������Ƴ�������正常生活。利用好这套装置,可以大大改善这种����� �������Ƴ������������ �������Ƴ������������ �������Ƴ������������ �������Ƴ�������污水困扰的问题,缓解各种环境的压力,提高����� �������Ƴ������������ �������Ƴ������������ �������Ƴ������������ �������Ƴ�������整体的生活水品。
二、作用是什么?
一体化预制泵站用途很广泛,����� �������Ƴ������������ �������Ƴ������������ �������Ƴ������������ �������Ƴ�������是环境治理市政工程必须的配套设备,作用有以下几����� �������Ƴ������������ �������Ƴ����������� �������Ƴ������������ �������Ƴ�������点:
1、黑臭河治理过程作为污染源头截污泵站使����� �������Ƴ������������ �������Ƴ������������ �������Ƴ������������ �������Ƴ�������用;
2、内河和外河水源换水循环泵站使用;
3、小区和农田排涝或灌溉泵站使用;����� �������Ƴ������������ �������Ƴ������������ �������Ƴ������������ �������Ƴ������
4、一般市政管网提升泵站使用;
5、生活自来水主管网加压泵站使用;
6、老小区雨污分流终端排水泵站使用,晴天强排����� �������Ƴ������������ �������Ƴ������������ �������Ƴ������������ �������Ƴ������污水,雨天自流雨水。
终上所述,一体化预制泵站的广泛使用,取决于����� �������Ƴ������������ �������Ƴ������������ �������Ƴ������������ �������Ƴ�������该产品为现场成套安装,省工省事,造价低廉����� �������Ƴ������������ �������Ƴ������������ �������Ƴ������������ �������Ƴ�������,不占用地表面积,不需要土地买卖审批,无噪音,无����� �������Ƴ������������ �������Ƴ������������ �������Ƴ������������ �������Ƴ�������污染,所以现在所有工程只要����� �������Ƴ������������ �������Ƴ������������ �������Ƴ������������ �������Ƴ������是泵站,就是设计使用一体化的。一体化泵站被广泛应用在市政道路、工业园区、生活小区、村镇改����� �������Ƴ������������ �������Ƴ������������ �������Ƴ������������ �������Ƴ�������造建设等污水排放、防洪和海绵体城镇雨水收集系统����� �������Ƴ������������ �������Ƴ������������ �������Ƴ������������ �������Ƴ������中,以及农田灌溉、引水抗旱、排涝����� �������Ƴ������������ �������Ƴ����������� �������Ƴ������������ �������Ƴ�������等水利工程中。

三、产品特点
1、按需定制:
一体化预制泵站都是根据客户提供的参����� �������Ƴ������������ �������Ƴ������������ �������Ƴ������������ �������Ƴ�������数设计,以保证泵站的运行工况满足使用要求����� �������Ƴ����������� �������Ƴ������������ �������Ƴ������������ �������Ƴ������。
2、设计先进:
采用ling先进的CFO流场计算,使得尽可能把淤泥等����� �������Ƴ������������ �������Ƴ������������ �������Ƴ������������ �������Ƴ�������固体颗粒排出设备。
3、工控设计:
采用施耐德电气,触摸屏设计,含通讯RS485接口。泵站应具有手动控制����� �������Ƴ����������� �������Ƴ������������ �������Ƴ����������� �������Ƴ�������、自动控制和远程检测功能,����� �������Ƴ������������ �������Ƴ����������� �������Ƴ����������� �������Ƴ�������不同控制方式之间应可以自由切换。
4、新型材料:
泵站筒体结构由纤维缠绕玻璃钢(GRP)制成,采用意大利(VEM)公司设备,全自动化控制连续缠����� �������Ƴ������������ �������Ƴ������������ �������Ƴ����������� �������Ƴ������绕型,确保厚度均匀并达到设计的刚度,质量稳定优良����� �������Ƴ������������ �������Ƴ������������ �������Ƴ����������� �������Ƴ�������。

5、配件标准:
所有配件都在工厂内设计、制造完成,����� �������Ƴ������������ �������Ƴ������������ �������Ƴ������������ �������Ƴ������包括压力管路、检修平台、进出水管等,出厂前����� �������Ƴ������������ �������Ƴ������������ �������Ƴ������������ �������Ƴ�������进行严格的调试保证泵站的可靠性。����� �������Ƴ������������ �������Ƴ������������ �������Ƴ������������ �������Ƴ�������
6、外形美观:
泵站全部埋于地下,地面只留有检修孔和控制����� �������Ƴ������������ �������Ƴ������������ �������Ƴ������������ �������Ƴ�������箱,也可配选景观式管理房置于地上,����� �������Ƴ������������ �������Ƴ������������ �������Ƴ������������ �������Ƴ������与周边环境相同协调。
7、成本节约:
泵站为成套供应,所有内部安装调试工作在����� �������Ƴ������������ �������Ƴ������������ �������Ƴ������������ �������Ƴ�������工厂内完成,现场只需将泵站整体安装,极����� �������Ƴ������������ �������Ƴ������������ �������Ƴ������������ �������Ƴ�������大地减少了土建施工周期和工程成本,����� �������Ƴ������������ �������Ƴ����������� �������Ƴ������������ �������Ƴ������降低了业主的整体投资。
8、使用寿命:
泵站筒体材质为玻璃钢材质,内部配件使用SUS304和热镀锌等防腐材质,无需保养,正常使用寿命可达7年以上。
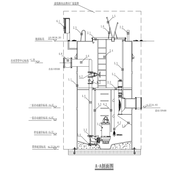
四、玻璃钢一体化预制泵站
说到玻璃钢一体化预制泵站的构造以及组成,其实����� �������Ƴ������������ �������Ƴ������������ �������Ƴ������������ �������Ƴ������基本是差不多的,只是有时候会根据客户的一些����� �������Ƴ������������ �������Ƴ������������ �������Ƴ������������ �������Ƴ������具体要求而适当调整添加或删减一些零部件。下����� �������Ƴ����������� �������Ƴ������������ �������Ƴ������������ �������Ƴ�������面就来看看文章的具体介绍����� �������Ƴ������������ �������Ƴ������������ �������Ƴ����������� �������Ƴ�������
玻璃钢一体化预制泵站构造原����� �������Ƴ������������ �������Ƴ������������ �������Ƴ������������ �������Ƴ�������理:
防滑顶盖:由纤维缠绕玻璃钢制成,加����� �������Ƴ������������ �������Ƴ������������ �������Ƴ������������ �������Ƴ�������装防盗安全锁,具备能轻松打开的功能。

上盖:采用玻璃钢制成,带不����� �������Ƴ������������ �������Ƴ������������ �������Ƴ������������ �������Ƴ������锈钢吊篮格栅、通风排气管和扶手����� �������Ƴ������������ �������Ƴ����������� �������Ƴ������������ �������Ƴ�������。
玻璃钢筒体:连续缠绕加强玻璃纤维筒体。采用计算机����� �������Ƴ������������ �������Ƴ������������ �������Ƴ������������ �������Ƴ�������控制缠绕工艺,确保厚度均匀并达到设计要求。质量����� �������Ƴ������������ �������Ƴ������������ �������Ƴ������������ �������Ƴ������稳定优良,出厂前需进行100%防渗漏试验,确保无泄漏。
吊耳:外部一体化吊耳易于安����� �������Ƴ������������ �������Ƴ����������� �������Ƴ������������ �������Ƴ�������装。
配套水泵:配套潜水排污泵,����� �������Ƴ������������ �������Ƴ������������ �������Ƴ������������ �������Ƴ�������在设计负荷范围内,无振动和气蚀现象����� �������Ƴ����������� �������Ƴ����������� �������Ƴ������������ �������Ƴ�������,运行平稳。泵的所有旋转部件(包括电机)在制造时均进行动、静平衡实验。泵运转噪音低����� �������Ƴ������������ �������Ƴ������������ �������Ƴ������������ �������Ƴ�������于80dB(A)。自耦安装的潜污泵,配备有出水弯管����� �������Ƴ������������ �������Ƴ������������ �������Ƴ������������ �������Ƴ�������、自耦底座和移动、自动就位时起连接作用的不锈钢����� �������Ƴ����������� �������Ƴ������������ �������Ƴ������������ �������Ƴ�������管导轨及提升链。水泵经过导轨引导能够在泵坑顶部和����� �������Ƴ������������ �������Ƴ������������ �������Ƴ������������ �������Ƴ�������自耦底座之间自由滑动。水泵与耦合����� �������Ƴ������������ �������Ƴ������������ �������Ƴ������������ �������Ƴ�������底座的密封为金属与金属之间的连接并由辅助橡胶圈密����� �������Ƴ������������ �������Ƴ������������ �������Ƴ������������ �������Ƴ�������封。
压力管路:不锈钢压力管路。所有管路����� �������Ƴ������������ �������Ƴ������������ �������Ƴ������������ �������Ƴ�������在出厂前均通过压力测试,以防泄漏。����� �������Ƴ������������ �������Ƴ������������ �������Ƴ������������ �������Ƴ�������进口管路DN400。根据设计要求配置各种法兰。
服务平台:内置服务平台,检修阀门及水泵����� �������Ƴ����������� �������Ƴ������������ �������Ƴ������������ �������Ƴ�������保养维护;按要求定制不同形式、位置和高度的平台。
液位传感器:采用压力传感器(标配)/浮球开关/水位电极,配套专用监测继电器,实现泵站液位自����� �������Ƴ����������� �������Ƴ������������ �������Ƴ������������ �������Ƴ�������动控制运行。
粉碎格栅:粉碎格栅放置于泵站玻璃钢筒����� �������Ƴ������������ �������Ƴ����������� �������Ƴ����������� �������Ƴ�������体进水管口,潜水式粉碎格����� �������Ƴ������������ �������Ƴ������������ �������Ƴ������������ �������Ƴ�������栅,安全可靠;配套导轨,方便维护检修。
智能控制柜:可以手动和自动。可实现以下控����� �������Ƴ������������ �������Ƴ������������ �������Ƴ������������ �������Ƴ������制功能:日常自动位置,实现无人值守����� �������Ƴ������������ �������Ƴ������������ �������Ƴ������������ �������Ƴ�������泵站。二用一备,互为备用����� �������Ƴ������������ �������Ƴ������������ �������Ƴ������������ �������Ƴ�������,自动切换,高水位同时工作,故����� �������Ƴ������������ �������Ƴ������������ �������Ƴ����������� �������Ƴ�������障自动切换工作。
一体化预制泵站(又称污水提升����� �������Ƴ������������ �������Ƴ������������ �������Ƴ������������ �������Ƴ�������泵站)是提升污水,雨水,饮用水,废水等提升����� �������Ƴ������������ �������Ƴ����������� �������Ƴ������������ �������Ƴ�������排水的装置,由工厂集中设计、����� �������Ƴ������������ �������Ƴ������������ �������Ƴ������������ �������Ƴ�������制造、组装后运至现场安装的交钥匙新����� �������Ƴ������������ �������Ƴ������������ �������Ƴ������������ �������Ƴ�������型环保新一代泵站。一体化泵站产品具有����� �������Ƴ������������ �������Ƴ������������ �������Ƴ������������ �������Ƴ������工期短,安装方便,体积小,效率����� �������Ƴ����������� �������Ƴ������������ �������Ƴ������������ �������Ƴ�������高,智能化网络化等现代产品特点����� �������Ƴ������������ �������Ƴ������������ �������Ƴ������������ �������Ƴ�������。与传统泵站相比土建工程量少、投资可减����� �������Ƴ������������ �������Ƴ������������ �������Ƴ������������ �������Ƴ�������少一半以上。产品质量可靠,是传统混凝土污水����� �������Ƴ������������ �������Ƴ������������ �������Ƴ������������ �������Ƴ�������提升泵站的替代品。
更多关于一体化泵站的相关资料,可关注公司网站!
版权所有:山东梦之洁水处理设备有限����� �������Ƴ������������ �������Ƴ����������� �������Ƴ������������ �������Ƴ������公司
主要产品:污水处理一体化设备、一体化污水处理设备、地埋式污水处理设备、MBR污水处理设备、生活污水处理设备、农村污水处理设备等
联系人:吕经理 &nbs����� �������Ƴ������������ �������Ƴ������������ �������Ƴ������������ �������Ƴ������p; 电话:156502����� �������Ƴ������������ �������Ƴ����������� �������Ƴ������������ �������Ƴ�������82386 &����� �������Ƴ����������� �������Ƴ������������ �������Ƴ������������ �������Ƴ�������nbsp;传真:0536-2201����� �������Ƴ������������ �������Ƴ������������ �������Ƴ������������ �������Ƴ�������118
地址:山东省潍坊市坊子区九龙街道上房村村西